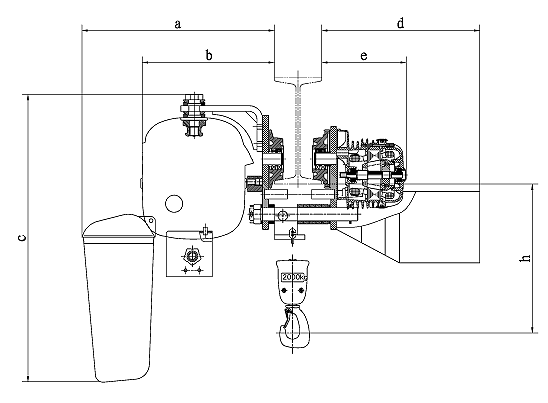
超低空型环链电动葫芦又称低净空环链电动葫芦
外壳:坚实而质轻。有特色散热片,散热快,可连续使用,效率达40%。整体密闭式结构,可使用在化工厂、电镀厂等地方。
磅磁刹车:设计的磁力产生器,其特性为产磁。可在电源切断的同时间刹车,保证吊重时刹车绝对确保安全。
极限开关:吊上吊下都有极限开关装置,使自动停止,防止链条超出,确保安全。
链条:采用加热处理合金钢链条。在雨水、海水、化学品及其他恶劣状况下使用安全无虑。
吊钩:经热锻造,强度绝佳,不易断裂。下吊钩可360°旋转,附安全舌片,确保操作安全。
支撑架:吊重支撑架由两片钢板组合,非常坚固。
变压器:24V/36V变压装置。操作时,万一漏电,可防止意外事故发生,下雨时,可保证安全使用。
电磁接触器:高效率电磁接触器,可高频率使用,没有问题。
逆相保护装置:特殊电线装置,当电源接线错误时,控制电路无法动作。
按钮开关:使用防水按钮开关,轻便耐用。
凯力起重电动葫芦产品系列(点进 产品名称 进入相关产品介绍页面)
超低空型环链电动葫芦 双钩组型环链电动葫芦 环链电动葫芦 钢丝绳电动葫芦
推荐阅读:
环链电动葫芦使用过程的故障排除方法
环链电动葫芦的具体安装步骤
电动葫芦使用中避免钢丝绳缠绕的办法
电动葫芦安全使用技术指导
环链电动葫芦的电机结构特点及工作原理
环链电动葫芦的电器控制装置
环链电动葫芦减速机构的特点
环链电动葫芦维修保养周期表
环链电动葫芦的链条提升机构
环链电动葫芦有效的保养办法
环链电动葫芦的主要运行方式
环链电动葫芦的工作原理阐述
环链电动葫芦的型号表示方法
环链电动葫芦使用前的试操作
凯力起重—旋臂吊,悬臂吊,悬挂起重机等轻小型起重设备制造服务商!产品咨询热线:0510-86991278
